
精约风在当下已越来越受年轻人的喜爱,大方简练、漂亮又有用,相信你看了下面的装修事例之后会更喜爱这个装修风格。咱们今日要共享的是一对夫妻用8万装修自家102㎡的新房,家具软装一进场光看便是一种享用,特别是在灯火的烘托下,美极了!相片发到小区业主群,引发一片仰慕声。
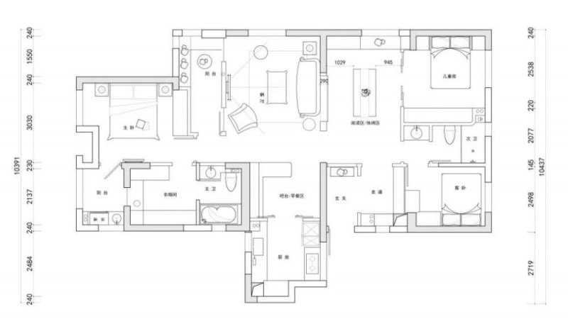
户型信息:
【户型面积】:102m
【房子格式】:三室两厅
【装修费用】:8万
客厅
客厅面积仍是挺大的,淡色的布艺沙发,调配白色的茶几,在色彩上有一个明显的比照,让客厅看起来洁净整齐,沙发背景墙是特意用几幅画来进行装修的,看起来比较有气氛,全体简略舒适
餐厅
餐厅旁带有飘窗,也使得整个房间的采光性更好,看起来愈加的洁净亮堂,给人一种非常清新的感觉。
主卧
主卧的色彩相对来说就重了一些,墙面也悉数刷的是淡绿色墙漆,这种色彩看久了,也会让人觉得比较舒适,白色的吊顶中心一盏黑色的吊灯,看起来也是层次感十足。
书房
书房的面积也不大,可是摆上一套简略的书桌和椅子也就能够了,周围的墙面上安顿了置物架,能够摆放一些饰品、书本什么的,美观又有用。
厨房
厨房的空间仍是挺大的,靠墙做了一排淡色橱柜,由于橱柜的长度够,所以也不必忧虑收纳问题,厨房的止境是赠送的日子阳台,仍是比较有用的。
卫生间
卫生间淡色墙砖配上白色的洗漱台,使整个空间不会那么昏暗,并且这两种色彩也都比较耐脏,打理起来也比较便利,让整个卫生间看起来给人一种很洁净的感觉。周围用玻璃推拉门做了一个淋浴间,做到干湿分区,很有用。

艾芬达电热毛巾架:持续创新突破,打造行业核心竞争力~
艾芬达电热毛巾架:改善浴室环境,畅享干爽舒适!
艾芬达电热毛巾架:浴室焕新装,健康新升级!
海信电视E8Q Pro璀璨登场,对比前代E8N Ultra有哪些升级亮点?
艾芬达电热毛巾架:告别春季潮湿,开启舒适生活新篇章!
艾芬达电热毛巾架:一键除湿,把阳光搬回家!
艾芬达成功通过L7级认证,数字化实力获权威认可!
数字化、智能化浪潮下,艾芬达电热毛巾架为行业发展开辟新路径!