
导语:小型复式是现在许多年轻人的置业首选,尽管面积不大,但是户型上的特殊性带来了更多的规划感。但是怎样才能让复式既美丽又好用还宽阔?
布景介绍
孩子的教育关于爸爸妈妈来说是头等大事,这款事例就是亲子学区房。
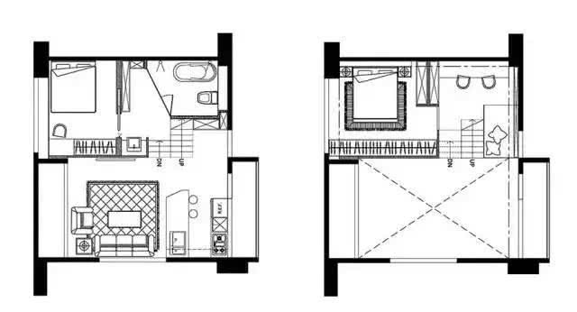
户型图
实景实拍
玄关
玄关的墙面做成黑板墙,延伸至厨房。墙面稍微稚气的字母风格,给家带来童趣。当然,由于黑色便利重漆,所以主要功能其实是为了给孩子展现绘画的天份。究竟,小孩在家乱涂乱画但是大多数家庭最头疼的问题。
客厅
开放式的客厅让人恍然大悟,白墙和白色的地上连成一体,在视觉上起到扩大作用。这样的规划很常见于小户。
用吧台分隔厨房和客厅,加上特性的吊灯和座椅,一个迷你的小餐厅就此成型。
用吊顶区分了客厅和餐厨。由于黑板墙的原因,站在客厅看厨房也会有“幽静”的作用。
楼梯
楼梯下方的空间做成了收纳柜,挨着卫生间,洗完澡后换衣服也很便利。
卫生间
楼梯
通往2层的楼梯一侧做了镂空的挡板,也给客厅加了一道屏风,光线穿过几何图形打在墙面上,别有一番兴趣。
二楼
楼梯和卧室的转角处做成了开放式厨房,大人能够在这里工作,孩子能够在旁边做作业,不必过多的言语,也能好好享用亲子韶光。
卧室
极简风的主卧,用沉稳的深色让全体看上去不太单调。
一眼便能从衣柜+电视墙的组合看出规划者的用心。
儿童房
儿童房墙面上的隔板既省空间又有用,屋子小也能够好好装修。一张双人床占有了大部分空间,往常也可当作孩子的游戏区,不会由于空间小而约束孩子生动好动的性情
来历:绘本家居

艾芬达电热毛巾架:持续创新突破,打造行业核心竞争力~
艾芬达电热毛巾架:改善浴室环境,畅享干爽舒适!
艾芬达电热毛巾架:浴室焕新装,健康新升级!
海信电视E8Q Pro璀璨登场,对比前代E8N Ultra有哪些升级亮点?
艾芬达电热毛巾架:告别春季潮湿,开启舒适生活新篇章!
艾芬达电热毛巾架:一键除湿,把阳光搬回家!
艾芬达成功通过L7级认证,数字化实力获权威认可!
数字化、智能化浪潮下,艾芬达电热毛巾架为行业发展开辟新路径!